陳寒暄 - 高級主任設計師
入行時間:2013 年 職稱:高級主任設計師
項目地址:建發金茂璽悅別墅
項目面積:310㎡
項目風格:新中式風
項目施工:山水人家裝飾
工程造價:70w

本案是獨門獨院的別墅案例,端莊大氣非常有檔次。業主一家是一個大家庭,和睦美好。他們熱衷東方傳統文化,并對原木元素頗為推崇,為此空間定調新中式風格。
飛檐翹角,疊石理水,別墅內部布局更是匠心獨運,既有傳統中式廳堂的莊重典雅,又不失現代生活的舒適便捷。每個房間還根據家族成員的喜好進行個性化裝飾,呈現古今交融的暢快意蘊。平??梢匝先搴糜哑凡枵摰?,享受生活的寧靜與美好。詩意的棲居,心安即是歸處,典雅中式韻味在別墅里流轉悠長……
房屋信息:別墅,新房裝修。

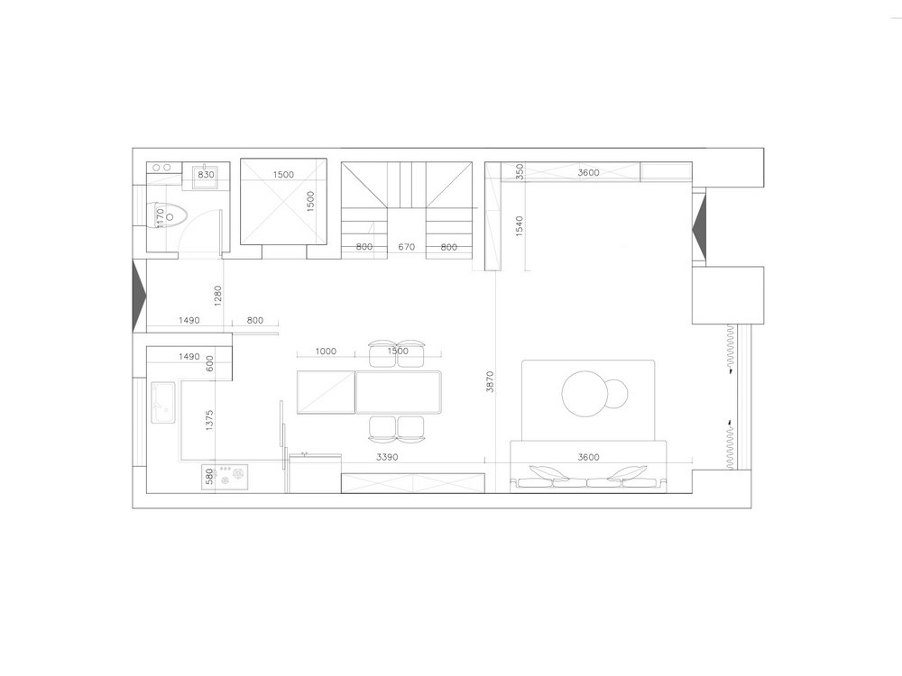
本案戶型方正,南北通透,再加上房子足有三層,每一層都做了專門的設計布置,主要包括:

一樓是傳統的生活功能區,主要的改變在于(1)客餐廳做一體設計,充分利用空間,減少壓抑感與擁擠感;(2)盡可能放大客廳空間,并定制了到頂柜體及中式端景造型。

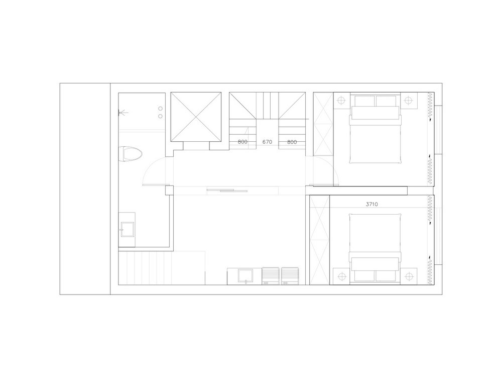
二樓、三樓則是家里的睡眠區,充分打造各個臥室,每個臥室風格不一,相應滿足業主的使用需求,提升實際居住體驗。

一樓客廳寬敞大方,大面積留白奠定溫馨基調。方形吊頂設計搭配木色裝飾,愈加豐富空間層次。房間里巧妙布置了兩個單人椅,緊挨著明亮的窗戶,讓人得以享受聊天或小憩。

客廳墻面選用墻紙材質,畫面有花、有鳥,瞬間化身視覺焦點,為空間增添了幾分自然與生機。紅棕相間的沙發組合,搭配深色木質茶幾,使得整個區域看起來更加柔軟舒適,熱情又不失穩重。

客廳還留出了寬敞的過道,為了各類活動的開展提供了理想的空間。定制一面玄關柜墻,米色柜門+深色木料,整體彰顯豐富質感。這不僅滿足了收納需求,還憑借其簡潔的線條,與整個空間的裝修風格相得益彰。

地面滿鋪灰色的大理石瓷磚,更多彰顯空間的現代感。進門即見精致的端景造型,引人注目的圓形掛畫及木制案臺,增添自然與野趣的元素。筆觸間的山川和飛鳥,更好提升了空間的藝術氣息,讓整個過道更顯生動有趣。

采用客餐廳一體設計,簡潔而不失功能性。側面打造同款色調的餐邊柜,保留充足的儲物空間,同時營造溫馨舒適的感覺。內嵌冰箱,不見絲毫凸出,相應提升空間利用率。

餐廳直接餐島一體,展現了精致的生活品味。島臺部分充當廚房操作臺的輔助,同時也是家人用餐的臺面。下方則裝成實用的收納柜,不常用的餐具用品放在里面,讓餐廚臺面更多保持簡潔的畫面。

餐廳區域選用長形的大理石臺面,光滑而又明亮。六把舒適餐椅分別放置在兩側,搭配頭頂的氛圍吊燈,增添幾抹浪漫與雅致。無論是家庭聚餐還是朋友聚會,這里都能成為大家享樂的好去處。

廚房內部干凈整潔,通鋪亮面瓷磚,更顯幾分清涼。櫥柜整體做成U型,邊角位置得到極致地利用。臺盆區放在窗戶口,無吊柜干擾,操作更方便。

櫥柜色調以清新白色和溫馨米色為主,呈現簡約現代的特質。空間里并未擺放過多的餐具廚具,這種留白處理使得整個廚房愈加寬敞通透,極大提升了餐廚的便利與高效。

餐廳正對著家里的樓梯,更好地銜接家里的各個區域。樓梯L型轉角設計,靈活應用空間。整體由光滑白色大理石雕琢,每一級臺階都閃耀著溫潤的光澤,賦予空間更多奢華氣息。

從樓梯下往上看,巧妙打破了空間界限,讓視線自由穿透樓梯頂部,燈光明亮清透。玻璃護欄+木色扶手,清晰勾勒出樓梯的輪廓,增加了空間的層次感和深度。

主臥空間大面積留白,奠定了明亮的基調。深色的木地板進一步帶來穩重與質感,也增添了不少溫馨感。房間一側有一扇寬大窗戶,將自然光引入室內,灑滿每一個角落。

主臥墻面被刷成了純凈的白色,不僅視覺清爽,還能成為房間最佳的背景板。精心布置一張單人床,并定制了木制床頭,營造出自然溫馨的睡眠環境。

側面騰出一大塊生活空間,沒有做傳統的衣帽間,而是做成L型的轉角衣柜,并延伸出相鄰的書桌區。柜子有藏有露,整體收納量很大。除此之外,這里還有著其他功能,既休閑又實用。

淺黃色的背景墻自帶清新與活力,搭配輕盈窗簾,營造臥室的寧靜氛圍。粉色床頭設計,結合白色的裝飾元素,顯得甜美溫馨,非常符合小女生的審美。

床邊緊鄰書桌區,擺放了桌子椅子,形成和諧的視覺效果。上方定做木制書架,充分利用垂直空間,為物品擺放提供了充足的容量。另一邊則是到頂的衣柜,同樣擁有強大的儲物能力。

房間木地板和淺黃色墻壁互為呼應,使得色彩搭配更加層次分明。床邊照例擺放了書桌區,上方是不規則的開放柜,整體憑借經典的顏色、造型,為學習閱讀提供了優良的環境。

木質床頭有著自然紋理和裝飾性能,這為睡眠區提供了堅實的支撐,同時憑借獨特造型,提升了床品的時尚感。旁邊銜接到頂衣柜,打破空間原有的單調,功能性十足。

衛生間通過合理布局,相應實現干濕分區。浴室柜+鏡柜,補足收納,豐富更多功能性。馬桶擺在同側,上方懸掛置物架,極大緩解空間的狹窄感。

濕區整個用玻璃護門隔開,確保了相對獨立的衛浴空間。尤其是鋪了墻地一體磚,整體更顯通透。地漏放在花灑的下面,這樣排水更快。

門前庭院也做了精細布置,圓形端景格外引人注目。整體設計簡潔而大方,木藝的質感在陽光下熠熠生輝。搭配一些花葉綠植,構成了生機勃勃的生活景象,愈加美化庭院環境。

除此之外,還配備了有遮陽棚的椅子,整體由堅實的木材制成,坐感舒適,特別適合放松休息。微風拂過,帶來陣陣涼爽,仿佛能卸下所有的疲憊。
廣電瓏府200平港式輕奢風格裝修效果圖
東湖城84平北歐風格裝修實景效果圖
東湖城115平現代簡約風格裝修案例欣賞
置頂—— 知精準報價 避裝修深坑 ——
平均七年以上的設計經驗資深設計師為您服務