王爽 - 首席設計師
入行時間:2013 年 職稱:首席設計師
項目地址:龍湖清能天奕
項目面積:20㎡
項目風格:現代風
項目施工:山水人家裝飾
工程造價:8w

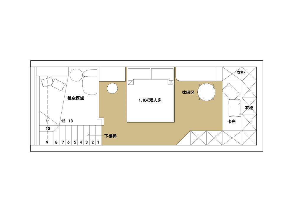
戶型解析
原本買下LOFT的無心之舉,卻獲得了極致的居住體驗。業主對生活充滿期待,顏色上偏愛溫暖的白色和米色,能夠為家里提供溫馨甜美的內蘊。通過對20㎡公寓的功能劃分,打造出讓業主舒心享受的專屬空間。

本案將客廳、廚房。衛生間等公共空間留在一樓,客廳區域做了挑空處理,這樣一來保證了每個空間的功能性和通透感。

二樓則根據居住需求設計了臥室和休閑區,其中休閑區布置了衣柜和卡座,增加基礎收納。
客廳

考慮到loft本身4.3m的層高,空間整體做了挑高處理,這樣能夠給家里帶來更多的靈活性和功能性。尤其是設計了大面積落地窗,強化了室內的明亮度和通透感。

整體空間以白色和米色為主,營造出一種簡潔干練的氛圍。右側設計了樓梯區,以通向上方的隔層,這樣不僅增加了空間層次感,還巧妙利用了垂直空間,使得室內布局更為緊湊豐滿。

沙發背景墻做了拼色設計,結合漂亮裝飾畫,彰顯更多美觀度及藝術氣息。米色模塊沙發擺在正中,配上同色系橢圓茶幾,不僅顏值清秀,還保障了極強的功能性。

電視墻則用米色乳膠漆做了裝飾,為空間增添一抹柔和的色彩。下方擺放了電視和電視柜,與整體色調相協調,給客廳提供了充沛的娛樂功能。其中樓梯底部還設計了一處鞋柜,補齊空間收納。
廚房
走廊兩側合理布局了廚房及衛生間區域。其中右側為衛生間,整體嚴實緊密,采用了超白油砂玻璃材質,更好保障空間隱私性。

廚房功能區劃分清晰,操作臺面和水槽靠近墻壁,方便日常使用。同側內置了冰箱和洗衣機,滿足日常生活的需求。白色櫥柜干凈耐臟,給人非常穩重的感覺。
主臥

二樓臥室盡可能擴大,充分滿足業主的使用需要。墻面大面積留白,更顯簡潔柔和。1.8m的大床擺在正中,旁邊規劃了梳妝臺,注重了空間的美觀和舒適性。里側還布置了卡座和衣柜,由此打造出一個舒適宜人的休息空間。
樓梯

樓梯整體應用透明玻璃護板,彰顯通透性的同時,有效保障業主的安全。魚肚白踏板+黑色裝飾扶手,凸顯時尚感和美觀度。再加上蠶絲吊燈的懸掛,蓬蓬的特別有張力。
衛生間

衛生間的墻面和地面鋪設了淺米色瓷磚,由此奠定了明亮的基調。浴室柜和鏡柜位于后側,淋浴區在左側,整體布局緊湊且功能分明。同時搭配花磚背景,為空間平添一份獨特的韻味。
光谷悅城120平輕奢風格裝修效果圖
聯投龍灣117平北歐風格裝修效果圖
招商公園御府1872法式奶油風165平完工案例
置頂—— 知精準報價 避裝修深坑 ——
平均七年以上的設計經驗資深設計師為您服務