李昌文 - 首席設計師
入行時間:2012 年 職稱:首席設計師
項目地址:新長江香榭琴臺
項目面積:104㎡
項目風格:中古風
項目施工:山水人家裝飾
工程造價:14w

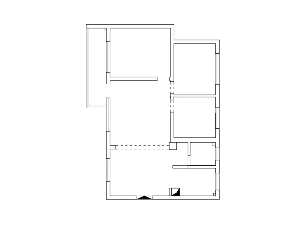
戶型解析

本案是一套面積為104平米的三居室,業主對設計的偏好很明確,喜歡低飽和度的色調,有助于讓內心恢復平靜,中古風格看起來更明艷高級。淺咖色+原木色的組合,配上柔光磚通鋪,在木香氤氳中,暖光暈染居家儀式感。

本案通過重塑空間格局,以實現功能區的合理規劃:(1)納入一部分陽臺給客廳,強化客廳整體采光;(2)打造客餐廚一體格局,呈現通透寬敞視野;(3)借用島臺充當隔斷,利于家人間的交流;(4)衛生間實現干濕三分離,確保衛浴質量。
客廳

原本客廳空間較為逼仄,采光補足。通過納入一部分陽臺面積給客廳,進而強化了整體采光,室內環境煥然一新。且靠窗擱置了淺咖色搖椅,平時可以舒適地躺著。窗臺堆疊白熊玩偶,增添趣味性。

客廳頂部采用無主燈設計,分散光源營造豐富光影層次。地面淺色柔光磚通鋪,真的顯大又不凌亂,更好延伸空間通透感。搭配上同色系地毯,散發出自然舒適的氣息。

全屋采用低飽和度的色彩搭配,讓整個空間更顯溫柔。橄欖綠沙發與淺咖背景和諧共生,增添靜謐感。再加上黑色小狗椅+蘑菇擺件的搭配,空間極具個性魅力。

客廳墻面盡可能多地留白,可以增加居室的明亮度,給生活留足呼吸感。大面積的空白墻面搭配少量家具、掛畫,反而更顯高級,回味亦無窮。
餐廳

客廳與餐廳無隔斷貫通,以白色大理石臺面島臺作為視覺過渡,既劃分空間又保持通透感。島臺一側緊靠餐廳儲物區,另一側面向客廳沙發區,整體形成流暢的“烹飪-用餐-休閑”一體動線。

靠墻定制嵌入式餐邊柜,深棕色原木柜體質感溫潤,由此奠定了沉穩高級的基調。中段開放格用黑白格背景裝飾,內置直飲水機+移動插排,滿足更多生活功能。另一邊則是雙開門冰箱內嵌,精簡空間動線。

島臺作為多功能中樞,既能備餐又可兼作餐桌,有效促進家人間的互動。頂部兩盞原木吊燈懸掛,暖光營造用餐氛圍。結合窗邊的木質百葉簾,陽光透過縫隙灑入,塑造“午后慵懶”場景。
主臥

主臥配色采用低飽和度的色調,空間更顯溫馨舒適。淺米色墻面無任何裝飾,僅通過石膏線勾勒天花板層次。地面通鋪人字拼木地板,顯著提升格調。

黑色雙人床采用實木啞光面+雕花,增添復古韻味。兩邊搭配同色斗柜+梳妝臺,營造溫馨角落??繅t定制到頂衣柜墻,白色柜門不顯山不露水,承載更多隱形收納。

主臥連接陽臺,增加空間面積的同時,獲得最大化采光效果。自然光透過雙層簾幕漫射,使整體看起來更和諧。陽臺布置到頂儲物柜,且內置了洗衣機+烘干機。隔斷區域則布置過道柜,功能性十足。
次臥

次臥空間干凈整潔,大面積采用留白技法,彰顯空間的寬敞大氣。再搭配上房間里的大窗戶,強化通透性。實木結構床+墨綠色靠背,不僅顏值在線,使用體驗也更好。
書房
書房空間無冗余裝飾,突出線條的干凈利落。左側窗臺搭配木色百葉簾,可自由調節光線。純白墻面+木色地板,延伸空間縱深,呈現通透自由格局。

房間專門設置了電腦辦公區,頂部定制黑色玻璃柜,懸浮設計減輕厚重感。桌面放置電腦,充分滿足業主娛樂電競的需求。雙電腦+雙電競椅配置,造型極具科技感,彰顯年輕潮流范。
衛生間

衛生間通鋪灰白色瓷磚,整體耐臟且視覺擴容,墻面是暖調花卉磚形,打破空間單調感。馬桶區和淋浴區錯落有致,實現干濕、清潔、收納三重功能。
大華南湖公園世家132平現代風格裝修案例欣賞
地鐵盛觀尚城116平現代風格裝修效果圖
綠地國際金融城三室兩廳240平新中式風格裝修效果圖
置頂
免費報價量房
—— 知精準報價 避裝修深坑 ——
平均七年以上的設計經驗資深設計師為您服務